XJG型惯性共振式给料机
概述
惯性共振式给料机(振动布料机)是我厂引进国外技术,替代进口产品的机型,惯性共振式给料机(振动布料机)采用双质体近共振原理,参照国内外各类给料机优点及用户使用要求而研制的,给料机的主振系统采用了特制橡胶与金属板粘合组合式主振弹簧,隔振系统采用了复合式弹簧。该机调速采用机械调速,但可根据用户要求配备变频调速器实现无级调速来改变振幅,以控制给料速度。
特点
惯性共振式给料机(振动布料机)激振器的偏心锤通过皮带轮,由电动机带动,具有防尘、防水、防爆等性能,该产品结构合理、节能、噪声小、重量轻、寿命长,是一种理想给料设备。

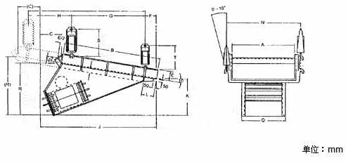
XJG型惯性共振式给料机外型与尺寸图:


XJG型惯性共振式给料机案例展示

本图片为鞍钢新一号高炉工作现场惯性共振式给料机(振动布料机)

惯性共振式给料机(振动布料机)鞍钢新一号工作现场

参数
XJG型惯性共振式给料机(振动布料机)——主要技术参数
| 型号 | 功率(KW) | 槽体尺寸 | 重量(Kg) | 槽体最大给料量 | |
| (宽×长)m/m | 煤(t/h) | 砂子(t/h) | |||
| XJC-50 | 3 | 500×760 | 750 | 100 | 150 |
| XJG-70 | 4 | 700×1220 | 1100 | 240 | 360 |
| XJG-90 | 4 | 900×1370 | 1400 | 320 | 480 |
| XJC-120 | 4 | 1200×1830 | 1650 | 560 | 840 |
| XJG-150 | 7.5 | 1500×2140 | 2100 | 960 | 1450 |
| XJG-180 | 11 | 1800×2440 | 2600 | 1200 | 1800 |
| XJC-200 | 15 | 2000×2745 | 3700 | 1520 | 2280 |
| XJG-240 | 18.5 | 2400×3360 | 4800 | 1920 | 2880 |
XJG型惯性共振式给料机(振动布料机)外型与尺寸
单位:mm
| 型号 | A | B | C | E | F | G | H | J | K | L | N | P | Q | R | S | T |
| XJC-50 | 500 | 760 | 130 | 130 | 87 | 648 | 119 | 775 | 320 | 95 | 590 | 40 | 400 | 455 | 460 | 160 |
| XJG-70 | 700 | 1220 | 150 | 180 | 165 | 1010 | 140 | 1295 | 450 | 150 | 875 | 95 | 510 | 660 | 610 | 190 |
| XJG-90 | 900 | 1370 | 200 | 200 | 233 | 1175 | 235 | 1340 | 440 | 180 | 1070 | 95 | 635 | 680 | 610 | 225 |
| XJC-120 | 1200 | 1830 | 260 | 200 | 276 | 1600 | 390 | 2065 | 585 | 200 | 1440 | 100 | 740 | 900 | 550 | 480 |
| XJG-150 | 1500 | 2140 | 420 | 200 | 210 | 1760 | 560 | 2520 | 745 | 230 | 1740 | 150 | 940 | 1120 | 635 | 555 |
| XJG-180 | 1800 | 2440 | 540 | 200 | 355 | 1875 | 710 | 2940 | 810 | 380 | 2050 | 150 | 1115 | 1230 | 845 | 845 |
| XJC-200 | 2000 | 2745 | 635 | 255 | 416 | 2100 | 820 | 3310 | 845 | 450 | 2270 | 180 | 1100 | 1320 | 845 | 845 |
| XJG-240 | 2400 | 3050 | 620 | 255 | 480 | 2350 | 790 | 3625 | 840 | 510 | 2670 | 200 | 1385 | 1370 | 845 | 845 |
说明:XJG系列与GZX系列标准相同。(本产品己用单位:鞍钢新一号高炉,齐大山选矿厂,香港特区牛头角采石场,山东扬子石化)
XJGf型惯性共振式给料机(振动布料机)主要技术参数
| 型号 | 功率(KW) | 槽体尺寸 (宽×长)m/m | 重量(Kg) | 槽体最大给料量 | |
| 煤(t/h) | 砂子(t/h) | ||||
| XJGF-70 | 3 | 700×1500 | 750 | 200 | 300 |
| XJGF-80 | 3 | 800×1500 | 950 | 350 | 470 |
| XJGF-100 | 4 | 1000×1750 | 1150 | 400 | 530 |
| XJGF-110 | 4 | 1000×1750 | 1250 | 500 | 660 |
XJGF型外型与尺寸
单位:mm
型号
L1
L2
L3
L4
L5
H1
H2
H3
B1
B2
B3
XJGF-70
2510
1500
760
1100
2570
1185
300
550
1200
700
720
XJGF-80
2550
1500
500
1200
2775
1238
300
550
1250
800
720
XJGF-100
2650
1750
500
1240
2845
1280
300
550
1400
1000
720
XJGF-110
2760
1750
550
1600
2905
1308
300
550
1482
1100
720
用途
惯性共振式给料机广泛用于矿山、冶金、煤炭、建材、轻工、化工、电力、粮食等各行各业中,用以把块状、颗粒状及粉状物料从贮料仓或漏斗中均匀连续或定量地给到受料装置中去。例如向破碎、选煤、筛分、运输、包装机械等给料、配料等。
相关产品
-
GZG自同步惯性振动给料机
GZG、GZGF自同步惯性振动给料机是一种经济技术指标先进的给料设备,用于把块状、颗粒状及粉状物料从贮料仓或漏斗中均匀连续或定量地给到受料装置中去。配套反接制动控制箱,可使给料机在短时间内迅速停机,同时还具有过流、过压、断相保护作用。
立即了解»GZG自同步惯性振动给料机
-
GZGB、GZGBF系列自同步惯性振动给料机
本系列给料机是GZG、GZGF系列自同步惯性振动给料机的改型设计。
立即了解»GZGB、GZGBF系列自同步惯性振动给料机
-
BZG普通电机驱动惯性振动给料机
BZG系列普通电机驱动惯性振动给料机吸取了GZG系列、GZY系列振动给料机等机型的优点,采用低频率大振幅振动,处理量大,是一种理想的高效低噪音给料机。
立即了解»BZG普通电机驱动惯性振动给料机
-
同步惯性给料机
同步惯性给料机配套反接制动控制箱,可使给料机在短时间内迅速停机,同时还具有过流、过压、断相保护作用,它是一种经济技术指标先进的给料设备,用于把块状、颗粒状及粉状物料从贮料仓或漏斗中均匀连续或定量地给到受料装置中去。
立即了解»同步惯性给料机
动态
-
05
2020-12
惯性振动给料机在试运转时要注意的事项
惯性振动输送机是一种无牵引构件的连续输送机械,主要由承载构件、弹性元件及激振器等组成。惯性振动输送机具有结构简单、性能稳定、安装方便、工作可靠等特点。惯性振动输送机试运转前,电气系统、安全连联锁装置、制动装置、操作控制系统和信号系统均应经模拟或操..
-
27
2015-04
谈谈惯性振动给料机使用条件如何
自同步惯性振动给料机是由给料槽体、激振器、弹簧支座、传动装置等组成。
-
20
2012-05
振动筛的三种筛分顺序
1、序列法:由细到粗的筛分。检修方便,容易观察振动筛各层筛面的工作情况,在由细到粗的筛分流程中,筛面顺次地按照筛孔增加的顺序排列。除此之外单轴振动筛,各筛可以沿整个筛面长.. 直线筛 惯性共振式给料机 1、序列法:由细到粗往复式给料机的筛分。检修方便,容..
-
19
2012-05
振动筛轴承箱密封分析与改进
沥青混凝土搅拌设备拌制沥青混凝土混合料时,储存在不同料斗内的冷砂石料经给料器粗配后进入干燥滚筒,在干燥滚筒内进行烘干、加热的同时又被混合在一起
-
06
2012-05
螺旋输送机技术原理及结构特点分析
高效直线振动筛螺旋输送机又称绞龙,适用于颗粒或粉状物料的水平输送,倾斜输送,垂直输送等形式。输送距离根据机型不同而不同,一般从2米到70米。&nb惯性共振式给料机sp;.. 螺旋输送机又称绞龙,适用于颗粒或粉状物料的水平输送,倾斜输送,垂直输送等形式。输送距离..
热销产品
-
DZSF直线振动筛
DZSF系列直线振动筛是由筛箱、筛框、振动电机、减振系统及座架等组成。直线振动筛是用振动电机作为振动源,固定在筛箱上两台相同的振动电机做相反方向自同步旋转,振动电机所带的偏心块在旋转时各个瞬间位置所产生的离心力之分力沿抛掷方向作往复运动
立即了解»DZSF直线振动筛
-
CZ系列仓壁振动器
-
ZG系列惯性振动器
-
GZ系列电磁振动给料机
GZ系列电磁振动给料机在生产流程中,用于把块状、颗粒状、粉状物料从贮料仓或漏斗中定量、均匀、连续地给到受料装置中去。
立即了解»GZ系列电磁振动给料机